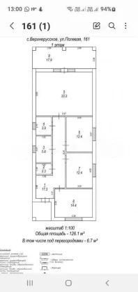
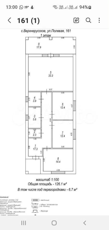
Продается дом, 120 кв.м., /1 эт
Обзор№ - 4556
| Стоимость | 5 900 000 |
|---|---|
| Комнат в доме | 3 |
| Категория земли | ИЖС |
| Тип комнат | раздельные |
| Тип строения | Дом |
| Площадь, кв.м. | 120 |
| Площадь участка, сот | 5 |
| Этажность | 1 |
| Материал стен | Кирпич |
Адрес
| Населенный пункт | село Верхнерусское |
|---|---|
| Улица | улица 50 Лет Победы |
В избранное Дом 120 м² на участке 5 сот.
Лот № 4556 Продаётся дом 120 кв.участок 5 соток в собственности.три спальни.раздельный санузел.большая кладовка.кухня столовая с выходом на терасу.улица полевая 161











